top of page
Residential
Stonecrest Engineering is able to provide a variety of services for residential construction. Whether it be onsite review of a building component requiring an engineer's report, residential renovations requiring review for the architect, or custom blueprints for building your dream home, Stonecrest can provide you with the engineering services you need.
01
1500 Sq Ft Bungalow
Three bedroom bungalow with attached garage.
Custom Home
Single Storey open concept plan, with four bedrooms and 3 car garage.
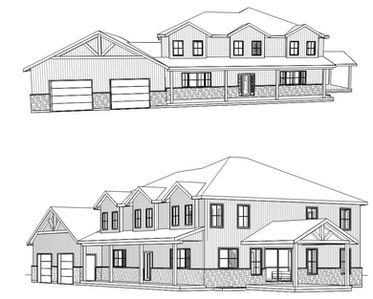
4100 Sq Ft Custom Home
Two storey custom home designed to clients needs with open concept main floor and four bedroom
220 Sq Ft Bungalow
Two bedroom bungalow with open concept.

AGRICULTURAL | COMMERCIAL | RESIDENTIAL
Tel: 519-625-8025
440 Wright Boulevard, Unit #2, Stratford, ON N4Z 1H3
bottom of page
































